Центр продуктов
Морской обратный клапан с винтовым обратным клапаном также может называться шаровым клапаном SDNR или клапаном SDNR. Чугунный клапан SDNR подходит для трубопроводной системы со средой пресной воды, воздуха и других газов, масла и пара с температурой не более 205 градусов по Цельсию.
Стандарт проектирования: JIS F7377-1996
Стандарт испытаний: JIS 7400-1996
Давление гидравлического испытания: корпус - 3,3 МПа, седло - 2,42 МПа
Размер фланца согласно JIS B2220 - 16K
![]()
Основной материал:
Корпус: чугун (FC200)
Крышка: чугун (FC200)
Сальник: бронза (BC6) или нержавеющая сталь (2Cr13)
Шток: C3771BD (латунь) или SUS403
Седло: бронза (BC6) или нержавеющая сталь (2Cr13, SCS2)
Диск: бронза (BC6) или нержавеющая сталь (2Cr13, SCS2)
Прокладка: не асбестовая
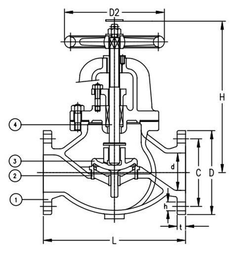
Основной список размеров (мм):
IMPA CODE | DN | L | D | C | No of bolt hole | h | t | H | D2 | Weight(kgs) |
751151 | 50 | 220 | 155 | 120 | 8 | 19 | 20 | 285 | 160 | 19.6 |
751152 | 65 | 270 | 175 | 140 | 8 | 19 | 22 | 310 | 200 | 28.3 |
751153 | 80 | 300 | 200 | 160 | 8 | 23 | 24 | 340 | 224 | 40.4 |
751154 | 100 | 350 | 225 | 185 | 8 | 23 | 26 | 385 | 250 | 56.9 |
751155 | 125 | 430 | 270 | 225 | 8 | 25 | 26 | 455 | 315 | 89.5 |
751156 | 150 | 500 | 305 | 260 | 12 | 25 | 28 | 510 | 355 | 123 |
751156 | 200 | 570 | 350 | 305 | 12 | 25 | 30 | 630 | 450 | 188 |
