Центр продуктов
Угловой обратный клапан из чугуна морского исполнения также может называться угловым клапаном SDNR из чугуна морского исполнения или угловым клапаном SDNR. Подходит для трубопроводной системы со средой пресной воды, воздуха и других газов, масла и пара с температурой не более 205 градусов по Цельсию.
Стандарт проектирования: JIS F7376-1996
Стандарт испытаний: JIS 7400-1996
Давление гидравлического испытания: для DN200 и менее: корпус - 2,1 МПа, седло - 1,54 МПа ~ 0,4 МПа, для DN250 и более: корпус - 1,5 МПа, седло - 1,1 МПа
Размер фланца согласно JIS B2220 -10K
* Стандартный вариант без индикатора, если заказчику нужен индикатор для клапана SDNR, пожалуйста, укажите это при запросе или заказе.
![]()
Основной материал:
Корпус: чугун (FC200)
Крышка: чугун (FC200)
Сальник: бронза (BC6) или нержавеющая сталь (2Cr13)
Шток: C3771BD (латунь) или SUS403
Седло: бронза (BC6) или нержавеющая сталь (2Cr13, SCS2)
Диск: бронза (BC6) или нержавеющая сталь (2Cr13, SCS2)
Прокладка: не асбестовая
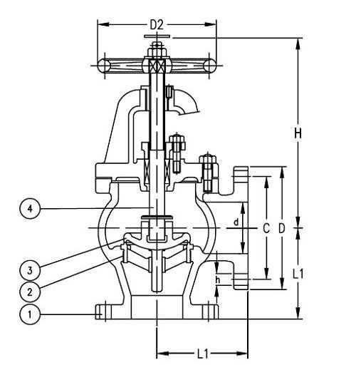
Основной список размеров (мм):
IMPA Code | Size | L1 | D | C | No of bolt hole | h | t | H | D2 | Weight |
751141 | 50 | 120 | 155 | 120 | 4 | 19 | 20 | 255/255 | 160 | 18.2 |
751142 | 65 | 130 | 175 | 140 | 4 | 19 | 22 | 270/260 | 200 | 25.3 |
751143 | 80 | 140 | 185 | 150 | 8 | 19 | 22 | 275/270 | 200 | 27.5 |
751144 | 100 | 160 | 210 | 175 | 8 | 19 | 24 | 315/305 | 250 | 40.6 |
751145 | 125 | 180 | 250 | 210 | 8 | 23 | 24 | 360/350 | 280 | 69.8 |
751146 | 150 | 205 | 280 | 240 | 8 | 23 | 26 | 405/390 | 315 | 81.2 |
751147 | 200 | 230 | 330 | 290 | 12 | 23 | 26 | 475/450 | 355 | 124 |
751148 | 250 | 290 | 400 | 355 | 12 | 25 | 30 | 570 | 450 | 211 |
751149 | 300 | 320 | 445 | 400 | 16 | 25 | 32 | 645 | 500 | 293 |
