Центр продуктов
Стандарт проектирования: JIS F7364-1996
Стандарт испытаний: JIS 7400-1996
Давление гидравлического испытания: корпус - 2,1 МПа, седло - 1,54 МПа
Размер фланца согласно JIS B2220 - 10K
![]()
Основной материал:
Корпус: FC200 (чугун)
Крышка: FC200 (чугун)
Диск: бронза (BC6) или SCS2 (2Cr13)
Седло: бронза (BC6) или SCS2 (2Cr13)
Шток: латунь (C3771BD) или SUS403
Прокладка: не асбестовая
Сальник: бронза (BC6) или SCS2(2Cr13)
Рукоятка: FC200 (чугун)
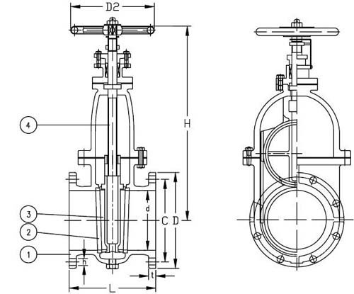
Основной список размеров (мм):
Size | L | Flange diam. (D) | Pitch (C) | Hole (nxh) | t | H | Weight |
50 | 200 | 155 | 120 | 4-19 | 20 | 300 | 19.4 |
65 | 220 | 175 | 140 | 4-19 | 22 | 350 | 27.6 |
80 | 230 | 185 | 150 | 8-19 | 22 | 400 | 33 |
100 | 250 | 210 | 175 | 8-19 | 24 | 450 | 45.8 |
125 | 270 | 250 | 210 | 8-23 | 24 | 520 | 65.9 |
150 | 290 | 280 | 240 | 8-23 | 26 | 580 | 86 |
200 | 320 | 330 | 290 | 12-23 | 26 | 700 | 136 |
250 | 380 | 400 | 355 | 12-25 | 30 | 840 | 230 |
300 | 440 | 445 | 400 | 16-25 | 32 | 960 | 331 |
350 | 500 | 490 | 445 | 16-25 | 34 | 1050 | 433 |
400 | 590 | 560 | 510 | 16-27 | 36 | 1150 | 597 |
