Центр продуктов
Морской запорный клапан используется для открытия и закрытия топливного трубопровода, смазочного, водяного, парового трубопровода при температуре 120 градусов по Цельсию или ниже.
Стандарт проектирования: JIS F7363-1996
Стандарт испытаний: JIS 7400-1996
Давление гидравлического испытания:
DN400 и ниже: корпус - 1,05 МПа, седло - 0,77 МПа (для не более DN400).
DN450~DN600: корпус - 0,75 МПа, седло - 0,55 МПа
Размер фланца согласно JIS B2220 - 5K
![]()
Основной материал:
Корпус: FC200/HT200 (чугун)
Крышка: FC200/HT200 (чугун)
Диск: бронза (BC6) или SCS2 (2Cr13)
Седло: бронза (BC6) или SCS2 (2Cr13)
Шток: латунь (C3771BD) или SUS403
Прокладка: не асбестовая
Сальник: бронза (BC6)/латунь/углеродистая сталь
Рукоятка: FC200/HT200 (чугун)
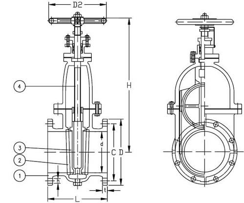
Основной список размеров (мм):
Size | L | Flange diam. (D) | Pitch (C) | No of Bolt Hole | h | t | H | D2 |
50 | 180 | 130 | 105 | 4 | 15 | 16 | 285 | 125 |
65 | 190 | 155 | 130 | 4 | 15 | 18 | 330 | 140 |
80 | 200 | 180 | 145 | 4 | 19 | 18 | 380 | 160 |
100 | 230 | 200 | 165 | 8 | 19 | 20 | 430 | 180 |
125 | 250 | 235 | 200 | 8 | 19 | 20 | 495 | 200 |
150 | 270 | 265 | 230 | 8 | 19 | 22 | 560 | 224 |
200 | 290 | 320 | 280 | 8 | 23 | 24 | 680 | 280 |
250 | 330 | 385 | 345 | 12 | 23 | 26 | 800 | 355 |
300 | 370 | 430 | 390 | 12 | 23 | 28 | 920 | 400 |
350 | 410 | 480 | 435 | 12 | 25 | 30 | 1000 | 450 |
400 | 470 | 540 | 495 | 16 | 25 | 30 | 1100 | 500 |
450 | 500 | 605 | 555 | 16 | 25 | 30 | 1420 | 560 |
